東尾久の家
ご無沙汰しております (斉)です。
だいぶ暖かい日が多くなってきて、そろそろ春ですね~。
周囲には、だいぶ花粉症に悩まされている人が多い様で、
辛そうにしている人を見ると、とても大変そうだな、と思いますが
私自身、花粉症でなくて良かったな、と思う今日この頃です。
(花粉症の皆様すいません・・・)
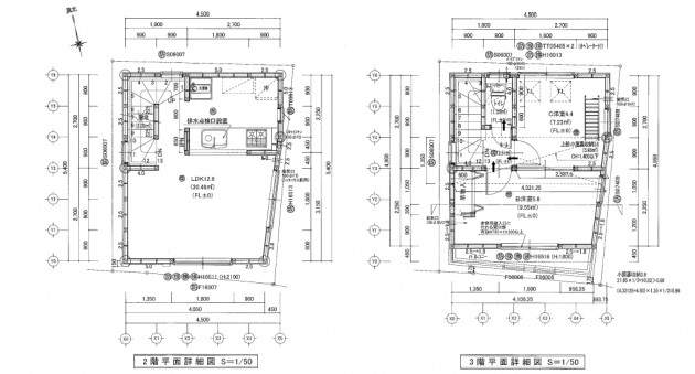
さて、話は変わりまして先日東尾久の家のお引き渡しを無事
行う事が出来ました。 K様有り難うございました。
約9坪という狭小地に、木造3階建で3LDKの間取りを建築
する事が出来まして、私のお引き渡しをさせて頂いた中でも
最も狭小地だと思います。
しかし狭小とは言っても、間取りはしっかりと取れておりK様
にも喜んで頂けたとおもいます。
浴室も1坪タイプが納まり、LDKが約13帖確保出来ました。
今後、狭小地に建築をお考えの方がいらっしゃいましたら
是非ご相談下さい!
(法令等の制限でご期待に添えない場合はご容赦下さい・・・)
ご相談お待ちしております!


